Infissi in PVC
ART SLIDING
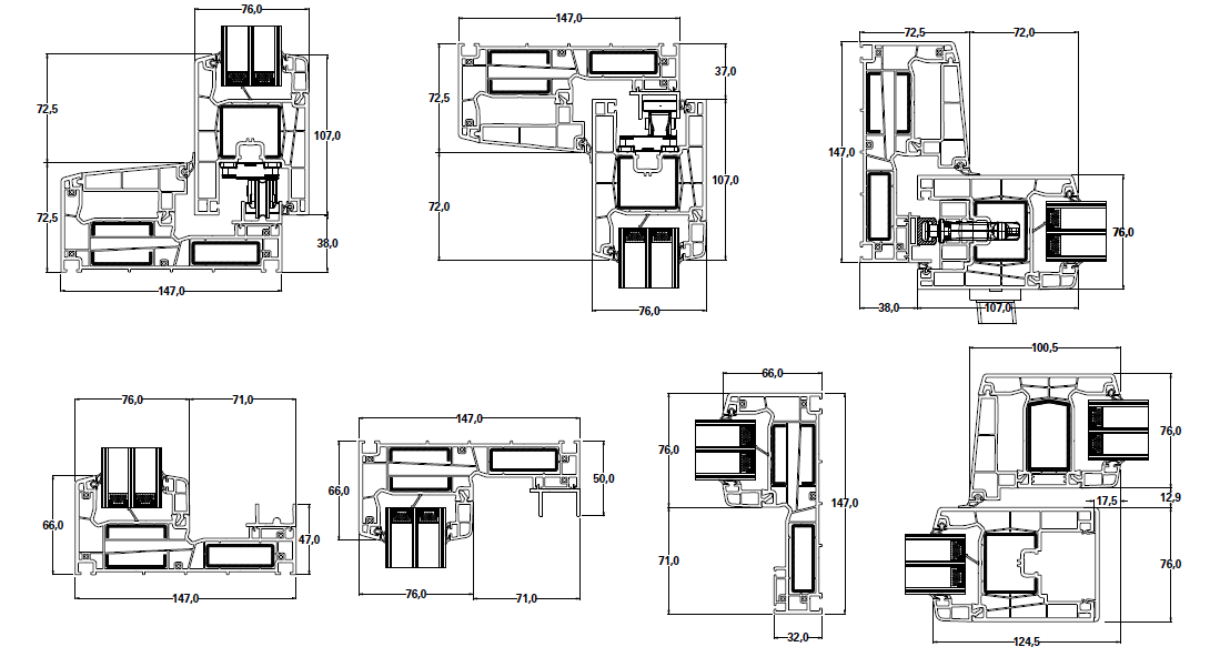
Il nuovo sistema scorrevole Alphacan amplia la gamma di soluzioni dedicate a porte e finestre, introducendo un’innovativa tipologia di apertura che unisce design d’avanguardia e performance eccellenti. Ideale per chi cerca estetica e funzionalità, questo sistema si distingue per la cura dei dettagli e l’eleganza tipica dei prodotti Alphacan.
Il nuovo sistema scorrevole Art Sliding è pensato per coniugare innovazione tecnologica e versatilità, offrendo soluzioni ideali per chi desidera un prodotto elegante, robusto e intuitivo da utilizzare.
Caratteristiche Distintive
Design raffinato
Unisce estetica moderna a una costruzione curata in ogni particolare, pensata per adattarsi armoniosamente a qualsiasi ambiente.
Sistema di apertura intuitivo
La movimentazione risulta semplice, fluida e immediata, garantendo facilità d’uso per tutte le tipologie di utenti, anche al primo utilizzo.
Elevate prestazioni di tenuta
Dotato di guarnizioni perimetrali e ferramenta con punti di chiusura multipli, assicura una protezione eccellente contro gli agenti atmosferici.
Zanzariera integrata
Possibilità di includere una zanzariera integrata per una protezione completa dagli insetti, senza compromettere design ed efficienza.






