Infissi in PVC
ALPHA EXTREME
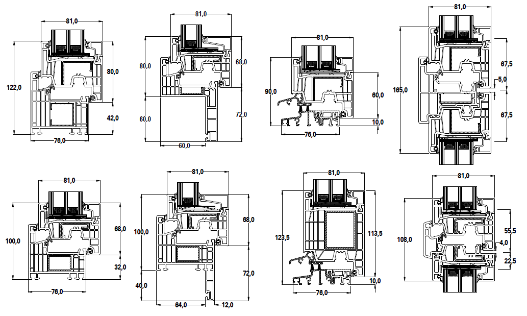
ALPHA EXTREME Design minimale; linee essenziali e squadrate, una caratteristica unica e distintiva con sezioni minimali che permettono un maggior passaggio di luce performante di isolamento termo-acustico al top: eccellenti valori nei test di certificazione della qualità.
Personalizzazione e colori: la più ampia gamma di decorativi per interno ed esterno della finestra con basi e guarnizioni armonizzate.
Caratteristiche Distintive
Isolamento termoacustico avanzato
Progettato per garantire un comfort ottimale riducendo la dispersione termica e i rumori esterni.
Elevata resistenza agli agenti atmosferici
Profili robusti e performanti in grado di mantenere l’efficienza anche in condizioni climatiche avverse.
Design minimale e modulabile
Linee moderne ed essenziali per adattarsi a qualsiasi contesto abitativo, con sezioni snelle che aumentano il passaggio di luce naturale.
Materiali sostenibili
PVC privo di piombo, con stabilizzanti calcio-zinco, che rende i prodotti non solo ecologici ma anche sicuri per l'ambiente e la salute.
Sostenibilità ambientale
Realizzato con una percentuale di PVC riciclato, testimoniando l’impegno per la riduzione dell’impatto ecologico.
Certificato
Certificazione EPD (Environmental Product Declaration)
Una garanzia di trasparenza sull’impatto ambientale lungo tutto il ciclo di vita, conforme agli standard internazionali ISO 14040.
Ampia scelta di colori e finiture
Fino a 45 combinazioni per interni ed esterni, con basi e guarnizioni armonizzate per un’integrazione perfetta in ogni stile architettonico.






